网站首页/硬件软件列表/内容

路由器tplink 差劲-(tplink路由器不好用)

硬件软件2025-04-22阅读
路由器(Router)是连接两个或多个网络的硬件设备,在网络间起网关的作用,是读取每一个数据包中的地址然后决定如何传送的专用智能性的网络设备。

路由器tplink 差劲

(tplink路由器不易用)

 

让我们今天谈谈 Wi-Fi 常用于组网 Mesh 功能。

总之,在组成中 Mesh 之后,路由器可以再次发射其他路由器的信号,以扩展网络。

 

▲多层 Mesh 网络示意图(来源:小米官网)

与中继相比,Mesh 路由器的节点信息可以自动同步,当节点出现问题时可以自行修复,设备可以选择最好的节点,从而实现更好的网络体验。

更重要的是,更重要的是,Mesh 在最初的设置和后续的扩展中方便,还支持有线和无线混合网络。

不要胡说八道。让我们进入实测环节。

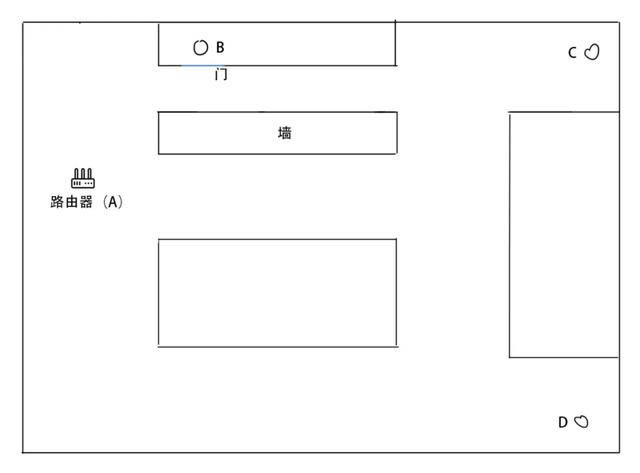
如下图所示,我将首先使用一个小米路由器 AX3000 使用一加 9 在 ABCD 测速四点。

 

为了避免移动信号对测试结果的影响,手机在整个测试过程中没有插入 SIM 卡。

在 A 点的 Wi-Fi 网络情况如下图所示,根据每个路由器发出的两个信号源计算,附近可能有 20 还有几十台电脑、手机、平板电脑等设备。

 

首先看网速,最高限制路由器 100Mbs 左右带宽的情况下,在 ABC 点几乎可以满,下载速度保持在 25-30Mbps 上下。

不过在 D 点的下载速率只有 50Mbps 上下,网络抖动和丢包也大幅增加。

 

接下来是游戏延迟测试,可以看到 BC 点的延迟与 A 相比之下,点有一定的增加。而在 D 点不仅延迟较高,还会经常出现 100 延迟对正常游戏影响很大。

 

从以上测试可以看出,只有通过小米路由器 AX3000 在测试范围内的大多数地方,路由器和移动设备确实可以得到很好的效果 Wi-Fi 网络质量与体验。

这是什么意思?说明路由器性能不错(记得给广告费)。

然而,这仅限于测试环境。如果中间隔是钢筋较多的承重墙,室内墙体设计比较复杂,或者在公寓等密集住宅和多层环境下,网络网络体验会更差。

更重要的是,测试用于测试 9 在 D 点的 Wi-Fi 信号总是在 2 格与 3 反复反复横跳。

 

众所周知,信号的质量不仅取决于实际体验,还取决于信号是否满格,因此下一步就要打开。

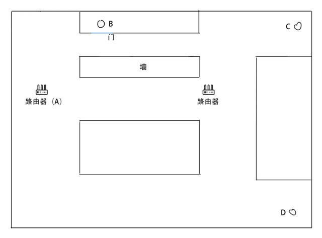
首先,我根据下图的位置在右边放了一个更近的地方 Redmi 路由器 AX6s。连接电源后,与第一个小米路由器连接 AX3000 组成 Mesh。

 

组成 Mesh 操作非常简单,只需要在米家或小米 Wi-Fi 打开路由器相关页面进入手机应用 Mesh 网络设备,选择设备,等待。

 

我也用家里的 TP-Link 组了一下,现在比较新的型号都有了「易展」按钮,按下配对。对于没有这个按钮但支持后台操作的型号,升级系统后使用网页也很简单。

 

在组成 Mesh 网后,我又来了 D 测试点。

这次网速直接达到了接近 B 点状态,网络抖动和丢包也大幅下降。对于游戏爱好者来说,延迟也降低到了相对合理的范围。

 

当然,对我来说,更重要的是 Wi-Fi 终于可以跑满格了,用起来也有安全感。

 

我们上面展示的是无线组网的效果,如果网线已经预埋在装修中,也可以使用有线组网。这样不仅网速更快,信号更稳定,不会占用路由网速,网络距离也可以大大提高。

例如,在使用华为的某些路由器时,只需将重置设备连接到另一个华为路由器,即可自动完成组网。对于一些没有网线覆盖的位置,也可以断开切换到无线 Mesh。

关于 Mesh 我将以问答的形式介绍组网的一些常见问题。

Q:想继续增加路由器怎么办?

A:将新路由器直接添加到现有路由器中 Mesh 网络即可。

Q:如何获得更好的无线 Mesh 体验?

A:三频路由器可以启动,回传不会占用手机等设备使用的带宽。此外,对于电脑、游戏主机等不需要频繁移动且对网络延迟敏感的设备,建议使用有线连接。

 

▲ 三频路由器介绍页

Q:不组 Mesh 行不行?

A:单层中小户型使用路由器没有问题。普通网页浏览、在线视频播放等。.4GHz 频段也能完全满足需求。

 

▲ 对 2.4GHz 无线设备发射功率限制的部分

但由于国家对路由器的发射功率和辐射有限,智能家电等设备将分为部分信道和带宽,单个路由器将不足。如果你真的觉得网络经常卡住,考虑更换更好的路由器或组 Mesh 比较好。

Q:不想/不会组 Mesh,有没有更简单的替代方案?

A:子母路由可以买,但是价格会更高。

Q:能否组建不同品牌? Mesh?

A:理论上是不可能的。毕竟的。毕竟,不同的产品不仅在背景、协议等方面存在差异,同。例如,华硕被称为 AiMesh,TP-Link 叫做易展。

 

然而,它们可以在桥接后与自己的路由器组成 Mesh,有些产品也可以通过刷梅林固件与其他家庭兼容 Mesh 方案。

最后,如果要实现更好的室内无线网络体验,建议在装修前预埋网线。

普通家庭建议使用超五种或六种网线(千兆)。如果对内网有更高的需求,可以考虑超六种或七种网线(万兆)。 AC AP 还是组建 Mesh 都会更方便。

对于 Wi-Fi 个人建议不建议使用放大器和电猫。毕竟,它们是相对过时的产品。目前,200或300元的路由器完全可以满足家庭网络,甚至单路由器覆盖的需求,使用起来更舒适。

 


路由器不仅让你更稳定快速地连接无线网络,更可以让家中的智能设备连接在一起。

……

相关阅读