构建光网络的必要性
目前传送承载技术广泛采用IPoverWDM的方式。在省去SDH层后,大部分SDH的保护和OAM功能必须由WDM平台实现。但是传统WDM系统基本上以提供点到点带宽为主,组网能力较弱,而且对WDM系统的管理仍主要基于网元级,网络的配置和调度基本上以手工为主。
目前有些干线光网络中,运营商不采用传送层保护,将保护任务交给业务网络来进行,但是业务网络无法感知光缆的物理拓扑,难以识别多个物理通道的相关性,很容易引起震荡和阻塞,因此只能采用网络轻载的策略,投资较大,而且业务层进行倒换效率也比较低,因此,目前在传送层进行保护是大多数运营商的共识。
目前现网上采用的保护方式主要为1+1光通道保护,但也是一种过渡方式。面对量大、突发的业务特征,现有实现方式困难重重。运营商迫切需求建设安全、灵活、高效的光网络。
光网络的核心是节点技术和传送技术,另外还包括控制平面及组网技术、网管与维护技术等。目前,40Gbit/s和超长距WDM系统的成功商用使得传送能力得到了大规模的提高,光网络技术的发展和应用集中在节点技术上,本文重点考察节点技术,探讨基于光交叉的ROADM和基于电交叉的OTN在干线中的应用。
ROADM技术状况与设备发展
ROADM是为满足下一代网络对WDM系统的要求而发展起来的一种技术。ROADM在2004年兴起在日本,目前已经在北美、欧洲和日本等地广泛应用。ROADM的应用从最初的城域网,开始向本地网和骨干网发展。多数运营商需要多维ROADM,目的是优化网络结构(由环向多环互联和MESH方向演进),提高自动化程度,降低OPEX;同时通过光层直通减少背靠背的连接,降低组网成本。
针对ROADM的标准化工作主要在ITU-T开展,ITU-T定义了G.680建议《光网元的物理传递功能》。我国的行业标准《可重构的光分插复用(ROADM)设备技术要求》已经报批,主要规范内容包括:设备技术要求(功能、保护、上下波等)、设备接口要求、设备传递参数、OTU参数要求、管理要求等。
ROADM设备的核心是光交换,主要有三种结构类型,早期采用波长阻断器(WB)、平面波导(PLC),现在多采用波长选择交换(WSS)型。基于WSS方案的ROADM支持任意波长从任意端口上下,配合当前比较成熟的可调谐OTU,支持端口无关的波长上下功能;支持群路上下,一个光口同时上下多个波长,并用MUX/DEMUX、OADM对这些端口上下的波长复用/解复用;在下路解复用及穿通控制部分使用耦合器替代WSS,可支持广播、组播功能;支持多向ROADM,基本能够满足组网的需求。
ROADM设备的主要优势:支持两个以上方向的波长重构;实现全光组网以及业务(波长)灵活调度;可以快速提供业务(光通道),多数支持本地任意方向的任意波长从任意端口上下;省去OEO转换,降低传输成本,并实现业务的完全透明传送与交换;适合大颗粒业务的传送(10Gbit/s、40Gbit/s等);可以在本地或远端进行波长上下路和直通的动态控制;光层全自动,简单、快速地开展业务;灵活的网络配置,及时适应需求的变化;避免带宽匮乏和波长闲置同时存在的情况,提高带宽利用率;可以通过配合边缘的OTN接口及电交叉,整合SDH和WDM层,简化网络等等。
ROADM设备存在的主要问题:组网半径受到物理传输参数的限制(残余色散、非线性效应、OSNR等),导致传输距离受限,这在40Gbit/s应用时尤为严重,大大限制了其在长途传输中的应用;不支持多厂家环境、无法实现不同厂家互联互通;不支持多规格网络(如100GHz、50GHz规格不能混合组网)。ROADM为光层处理,无法简单实现业务的汇聚,也无法根据不同业务提供不同带宽,同时存在波长阻塞的可能,资源使用率不高。如果管理或者设定出现问题,容易出现自环现象,造成网络故障。ROADM的初期投资成本较高,这在传统WDM价格持续下降的今天尤为明显。

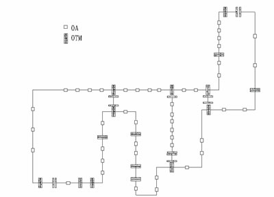
图1 某省内干线网络拓扑结构图
ROADM的应用主要在北美市场,Verizon已经采用了泰乐公司的7100光传送系统构建城域骨干网络。日本市场由于富士通在ROADM领域的领先地位早期发展较好。欧洲正在谨慎地开展ROADM的应用,芬兰Corenet首次涉及多维ROADM的运营,Corenet使用的是ECI的XDM系列产品。
目前国内对ROADM关注较多:2007年中国移动、中国电信和原中国网通陆续进行了相关测试。但仅有几个公司开始对ROADM进行公开商用,主要包括中国移动陕西公司、上海广电等。国内推广并支持ROADM的厂家包括华为(OSN6800和8800设备)、阿朗(1850系列)、中兴(M900/M800)和烽火(Fonst3000产品)、爱立信(MHL3000WSS)和诺基亚西门子通信(SURPASShiT7300)等。
OTN的技术状况与设备发展
ITU-T从1998年左右启动了OTN系列标准的制定,目前已经基本完善,形成了一系列标准:体系结构(G.871,G.872)、结构和映射(G.709,G.7041,G.7042)、功能特性方面(G.798)、物理接口方面(G.959.1,G.693)、网络性能方面(G.8251,G.optperf,M.2401)、网络保护方面(G.808.1,G.873.1,G.873.2)、网络安全方面(G.664)等。国内对OTN技术的发展也颇为关注,目前已完成了2个OTN行标(等同G.709和G.959.1)和1个国标(等同G.798),正在进行OTN网络总体要求等行标的编写。
OTN的主要优势包括:多种客户信号封装和透明传输,支持SDH、ATM、以太网,其它业务也正在制订中;大颗粒的带宽复用、交叉和配置,可以基于电层ODU1(2.5Gbit/s)、ODU2(10Gbit/s)和ODU3(40Gbit/s),远大于SDH的VC12和VC4;强大的开销和维护管理能力;增强了组网和保护能力。OTN的主要问题:OTN对GE、10GE、40GE和100GE的映射和交叉连接的标准还不完善;基于电交叉的OTH设备交叉容量仍有待进一步提高,支持的交叉颗粒仍只有ODU1和ODU2,不同厂家的互联互通仍存在问题;控制平面、管理和维护需要更多的现网积累。
从2007年开始,中国电信、原中国网通和中国移动等已经开展OTN技术的应用研究与测试验证,而且部分省内或城域网络也局部部署了基于OTN技术的网络,组网节点有基于电层交叉的OTN设备,也有基于ROADM的OTN设备。
目前在国内得到应用的支持OTN电交叉的设备主要包括Infinera公司的DTN设备,华为的OSN6800、OSN8800设备,中兴的ZXMPM800和烽火FONST3000等,部分设备的电交叉能力已经达到了Tbit/s量级,已经可以提供类似SDH的交叉。
节点技术在我国干线工程的应用
基于光交叉的ROADM和基于点交叉的OTN目前设备均相对成熟,但是两者的工程使用却有较大的差别。图1是某省内干线WDM系统配置现状,如果用ROADM重新设计,则需要增加电再生站,原站点需要调整,通过分析和比较,ROADM整体上能够大大节省业务节点再生OTU的数量,OTU的总数量大约能减少一半。如果采用基于电交叉的OTN设备,局站几乎不需要进行调整,且由于OTN采用线路支路分离的方式,和原系统相比OTU的支路部分减少至少三分之二以上。而且由于OTN采用类似“带宽池”的概念,其管理和维护更加方便。
通过对ROADM技术和OTN技术的比较和工程应用分析笔者发现,由于OTN在局站设置、工程设计与传统WDM系统接近,管理维护与运营又比较接近传统的SDH,而且采用线路和业务支路分离的OTU模式,形成“带宽池”,更加方便传统WDM的平滑演进,因此具备更多的优势。特别是随着设备的发展,电交叉能力已经达到了Tbit/s量级。从上述分析也可看出,无论是ROADM还是OTN,提供高集成的、简单、低成本的纯电再生站点(无需交叉、无需上ODF)是降低成本的一个主要渠道。
干线容量较大,节点方向较多,目前运营商绝大多数采用传统WDM,局站设置和管理维护等不宜做较大调整,目前使用ROADM存在规划困难、设计复杂的问题,而且当前容量也不能满足需求,建议在小范围或者规模较小的省内干线使用。以电交叉为基础的OTN有较大优势,运营商在新建WDM时可以采用完全兼容传统WDM的OTN设备,逐步取消调度ODF的使用,通过标准OTN接口解决不同厂家之间和与现有WDM系统的互联互通问题,逐步实现光通道的端到端管理和维护,提高管理、维护和运营能力,逐步构建一个安全、高效、灵活的光网络基础传送平台是完全可行的。
总之,从现在来看,未来的干线传送网络将是一个以电交叉OTN为核心的、配合以局部光交叉ROADM的高可靠的、高效灵活的光网络。
……