笔记本电脑(NoteBook Computer,简称为:NoteBook),亦称笔记型、手提或膝上电脑(英语:Laptop Computer,可简为Laptop),是一种小型、可方便携带的个人电脑。笔记本电脑的重量通常重1-3公斤。其发展趋势是体积越来越小,重量越来越轻,而功能却越来越强大。像Netbook,也就是俗称的上网本。笔记本电脑跟PC的主要区别在于其便携带性。
苹果笔记本wifi信号弱怎么办?Mac用户实用WiFi信号覆盖范围方案。wifi信号弱怎么办?
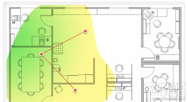
对于家住面积颇大的网络新手来说,投资了两三个Wi-Fi无线路由器来覆盖,有时往往也有Wi-Fi盲区和信号不好的区域。PC6小编今天就给各位Mac用户推荐一款免费易用的无线监测工具NetSpot for Mac应用来帮助你快速掌握收集、可视化、分析WiFi数据。它的界面非常友好且容易上手,可以通过Macbook快速扫描测量家中的Wi-Fi信号分布情况,并且通过可视化的方式来帮助你迅速找到信号盲区。

NetSpot for mac可以通过构建一个可视化的Wi-Fi地图展现你的无线网络。它会让你看到盲区覆盖不到的正确的位和热点(无线接入点) 。通过分析所收集的无线数据的可视化地图,你还会看到通道的负荷,就可以决定如何更好地优化你的Wi- Fi现场。NetSpot for mac是Wi-Fi覆盖的强大分析仪。


只是点几下就可以加载您所在区域的地图,在地图上点你的位置,NetSpot for mac开始收集你周围的Wi - Fi数据。它会收集所有必要的信息,无线电信号泄漏分析,噪声源发现,接入点有效的位置,等等。免费版本仅能提供一层楼的Wi-Fi布局信息,如果家中有多层的话可以购买199美元的专业版本。不过免费版本已经相当强大且易用了。
……